Boligvelger
Bo i Sander kvartal
Boligkvaliteter
Ditt nye nabolag
Galleri
Dokumenter
Meld interesse
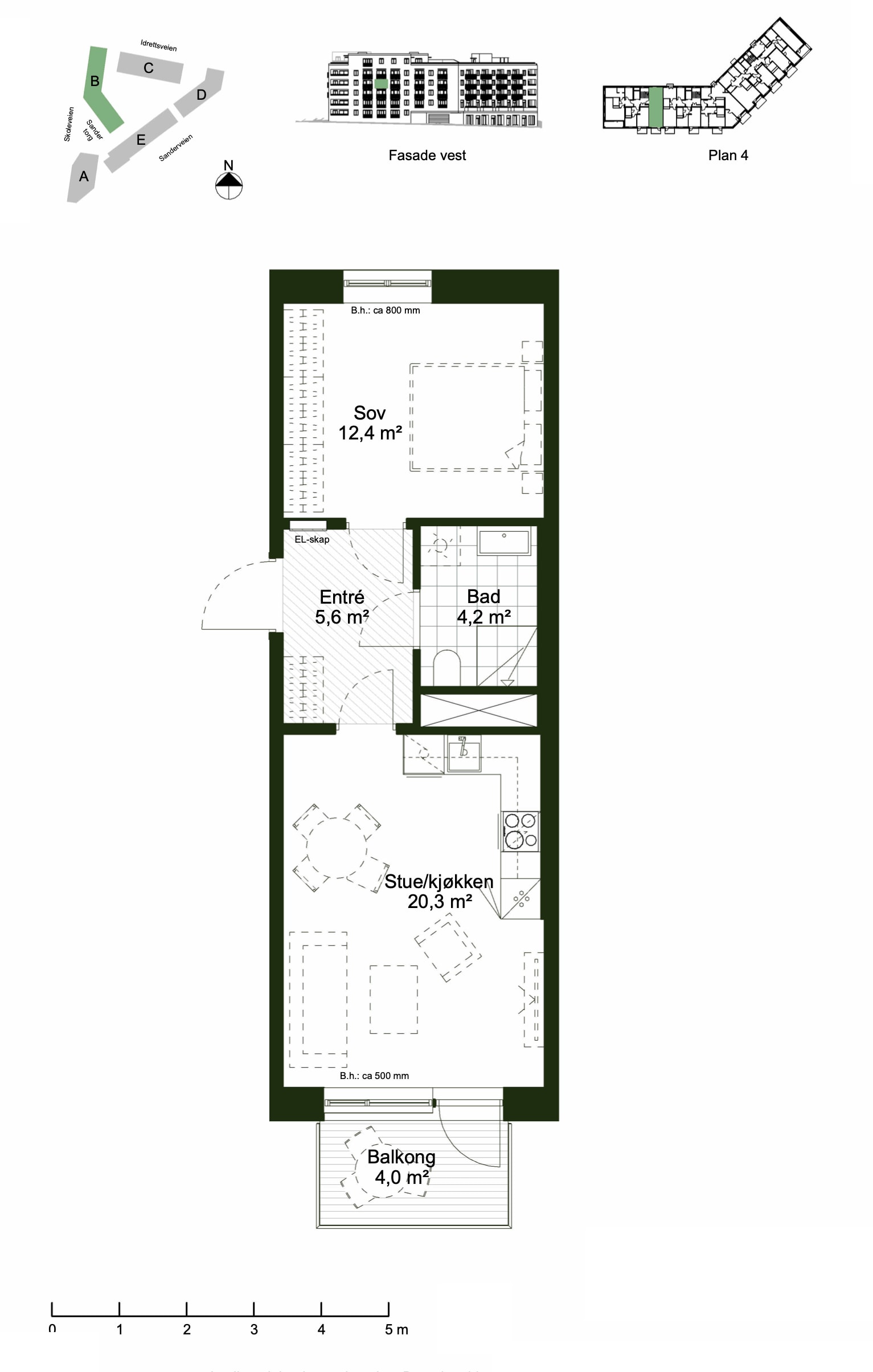
B3-401
Meld interesse
Kjøp
Status
Ledig
Pris
4 500 000
Fellesutgifter
1 975
Omkostninger
9 190
Totalpris
4 509 190
Etasje
4
BRA-i m²
45
BRA-e / Bod
2
BRA m²
47
Soverom
1
Uteplass m²
4
Garasjeplass
Nei
Se din utsikt
Se bygget
Vedlegg
Kontraktstegning B3-401
Nysgjerrig? Meld interesse for å holde deg oppdatert!
Navn*
Telefon*
E-post*
Beskjed
Ferd AS bruker eiendomsmegleren Sem & Johnsen i forbindelse med salg av boliger i prosjektet Sander kvartal. Jeg samtykker til at Ferd AS kan utlevere mine personopplysninger til Sem & Johnsen og at begge aktører kan kontakte meg om prosjektet Sander kvartal.
Les mer her
om hvordan Ferd AS og Sem & Johnsen behandler personopplysningene dine.
Send
Powered by Plyo
Tilbake til Boligvelger